三大市區寮屋區重建在即,將陸續改建成為公屋及居屋。其中牛池灣村工程已於去年6月展開,近千間寮屋將被清拆,不少村內老店面臨離場。當中屹立近67年、堅持人手製作點心的舊式茶樓「新龍城茶樓」,近日宣布將於下月底結業,難逃清拆命運,不少街坊大感不捨,紛紛表示要把握最後機會幫襯。
牛池灣村重建 67年寮屋茶樓4月結業
新龍城茶樓已有近67年歷史,是香港碩果僅存的鐵皮寮屋茶居,點心師傅每日由凌晨一點開始人手製作,堅持出品傳統手工點心,同時保留「玩雀飲茶」的傳統文化,除了藝人羅家英早年在電視大力推介外,從茶樓社交媒體照片,古天樂等藝人曾經光顧。
因應政府《施政報告》牛池灣村寮屋區重建計劃,新龍城茶樓於Facebook宣佈即將結業,晚市會營業至3月31日,而早午市最後營業日為4月30日。負責人感激茶客多年支持,並呼籲大家把握最後機會到「新龍城茶樓」品嚐點心。
▼即睇「新龍城茶樓」結業公告▼
因應政府收回牛池灣村寮屋區重建計劃,現新龍城茶樓晚市營業至3月31日,早午市營業至4月30日,多謝各街坊一路以來的支持,想重溫舊式茶樓,大家可趕緊時間來品嚐,查詢或訂座請致電5591 1639。
早午市營業時間,早上四時至下午二時半
晚市營業時間,下午四時半至晚上11時半
地址:彩虹牛池灣龍池徑67號地下B號舖
▼新龍城茶樓最後營業日▼
- 晚市最後營業日|2026年3月31日
- 早午市最後營業日|2026年4月30日
網民大感可惜
消息一出,不少熟客及網民大感可惜,並表示「謝謝師父們一直做出好點心」、「睇吓有冇機會江湖再見吧」、「過幾日要來回味」,更有留言指「希望港府可以提供一個新地點,讓他們可以繼續營業」。據資料顯示,茶樓原址的寮屋日後將會重建成為房協公屋屋邨及資助出售房屋(即 居屋)。
200年村落走入歷史 牛池灣村寮屋重建成房協屋邨
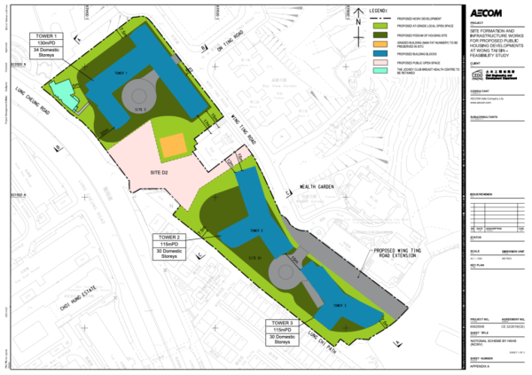
政府於2019年《施政報告》提出重建三大市區寮屋區,包括茶果嶺村、牛池灣村以及竹園聯合村,其中牛池灣村工程交由房協興建3幢公屋及居屋,相關工程已於去年6月起開始,預計最快在2031年起分階段落成,提供約2725伙,以及休憩用地、社區會堂、幼稚園、長者日間照顧中心等設施。
牛池灣村重建規劃大綱
牛池灣村重建後示意圖
資料及圖片來源:HKET、FB@牛池灣新龍城茶樓、小紅書@E小姐姐及小紅書@浩浩在香港






